











Mobile Expandable Prefab House. This Bastone portable expandable storage warehouse of 16½ft x 20ft is the best choice for secure, affordable, temporary warehouse storage. Come in an assembly unit, and you will just need a few hours and minimum labor to unfold it, you will have a 16½ft x 20ft covered area for an office or a warehouse. This onsite warehouse saves you time and money by building and mounting it in your place to meet all your needs. Bastone 16½ft x 20ft portable warehouse is a solution for your storage and work area requirements. Calebwedman Industrial also carries portable warehouses and portable houses in 15ftx20ft and 19ftx20ft (with a toilet built-in).
Dimension
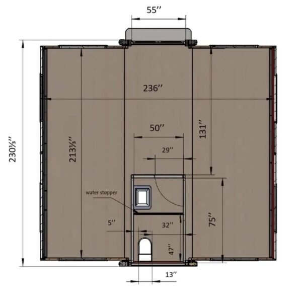
L19xW20xH8 (after expand),380ft2
Frame Structure
Steel Frame structure
Flame retardant foam wallboard
Roof
Flame retardant foam aluminum magnesium manganese thermal insulation roof
Floor
Glass magnesium floor
0.08-inch wear-resistant laminate floor leather
Window
Double-layer tempered glass-plastic-steel sliding lattice window
window outside bathroom: Plastic glass window
Restroom with shower
shower curtain rack, Shower valve, Shower sprinkler, shower rod, floor Drain, door stopper: Stainless steel
shower curtain: tarpaulin
Soapdish, toilet brush: Aluminum alloy
Water stopper, mirror box: PVC
Silent exhaust fan
Security Doors
Main door: aluminum door with lock
Restroom door: WPC Door + Frosted Glass
Electricity
Need to set up additionally
Hot and cold water valve
Stainless steel Grade 304
Fittings
PPR hot and cold water pipe
PVC drainage pipe
Insulation Pipe
Installation
Hydraulic brace: Pressure 3000N
Bearing: 6204
Hinge pulley block: 2000 lbs
Wire rope: φ5mm
Reviews
There are no reviews yet.